Fortis Construction Portland Headquarters
Located in South Portland on the first floor of the historic Water Tower Building, the new Fortis Construction Portland Headquarters was inspired by a vision to strengthen collaboration and to support and celebrate Fortis’s culture, values and identity.

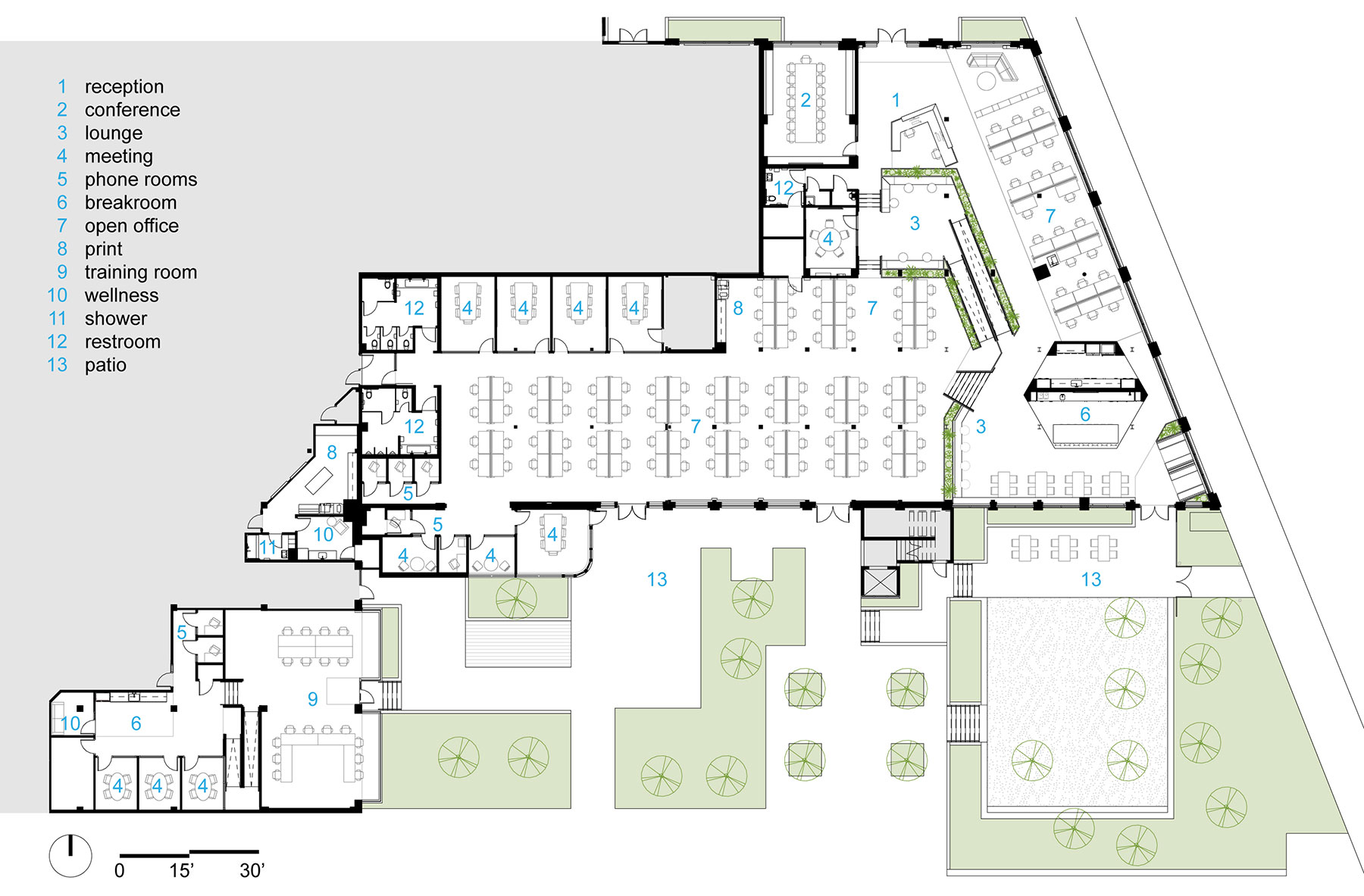
Our design concept centered on taking advantage of the unique opportunities of the historic building to create strong connections, both inside the office and with the adjacent outdoor areas, to create a site-specific modern office space into the industrial shell.


The building wraps around a series of exterior spaces to the south, overlooking a variety of outdoor gathering areas and landscaping. These are conceptually brought inside with a series of ramps and custom-built planters that stitch together the two levels of the office. Crafted from mass plywood, this interior topography creates a series of smaller lounge and seating areas that encourage serendipitous interactions and informal work.



The new office layout prioritizes orienting workstations and public seating areas along the perimeter to provide the strongest connection to exterior views and daylight.





Meeting areas in a variety of sizes and types are provided throughout the space, ranging from individual phone booths to large conference and training rooms. This, combined with integrated technology platforms, allows for flexible collaboration and work styles.



Location
Portland, OR
Size
15,937 sf renovation
Completion
2024
Collaborators
Nossa Norman Design Studio
KPFF Structural
LUMA Lighting Design
Acoustic Design Studio
Hyphn
Fortis Construction
Foss and Fern
Photography
Stephen Miller