birch ADU
The birch ADU is a sustainable, affordable Accessory Dwelling Unit prototype that is adaptable to any site but is tailored to take advantage of the rear lot access of residential alley sites. The Grand Award winner for ADU design in the 2021 Salt Lake City Empowered Living Design Competition, it maximizes the potential for new types of urban living within traditionally underutilized backyard spaces, creating density and an affordable housing option within existing neighborhoods while maintaining the existing housing stock and character of the street frontages.



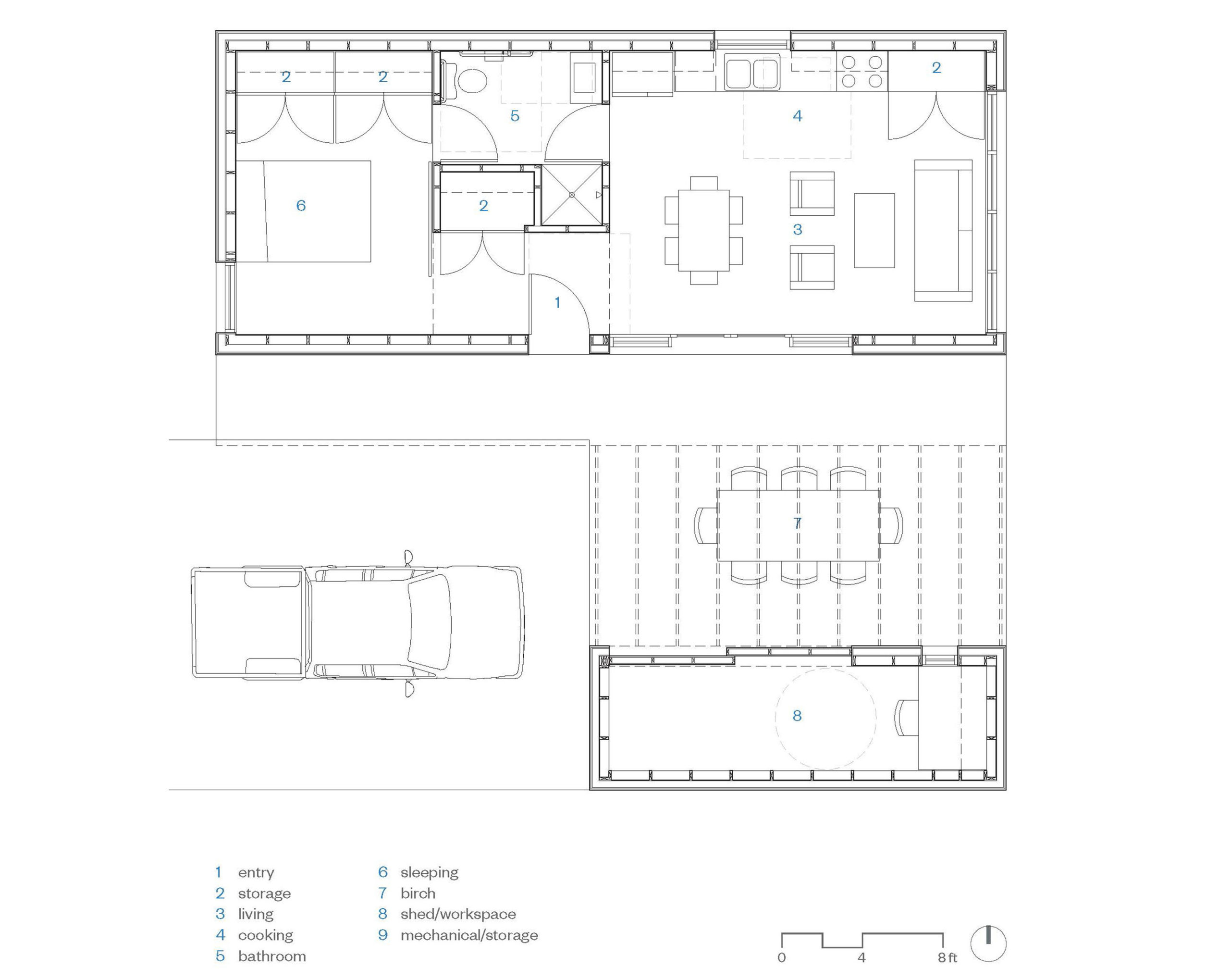
To address the potential of various sites, the design incorporates a limited “kit-of-parts” that includes a main structure for living, an exterior storage shed, and a covered outdoor space in-between. This covered space, the “birch” (BI-directional poRCH), forms the heart of the design by creating a flexible covered outdoor space that extends the living space and is both sheltered and connected. When thoughtfully configured to the unique characteristics of its site, the “kit-of-parts” can adapt to and engage its specific context and work to create community inside and out.






Location
Salt Lake City, UT
Size
650 sf
Completion
2021 Competition Entry
Recognition
Grand Award Winner, ADU Category
Model Photography
Mario Gallucci